Gezellige te renoveren woning met 3 slpk in Nieuwrode

Verkocht

30 Rot 3, 3220 Holsbeek
3 slaapkamers

Omschrijving

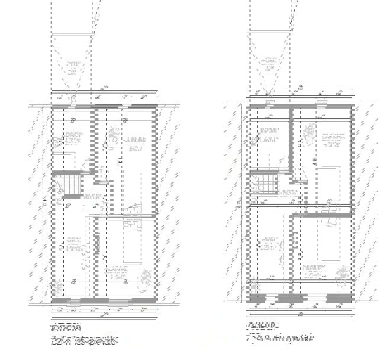
Verkocht met all-in verkooppakket. Dit huis is rustig gelegen in Nieuwrode en biedt een geweldige kans voor wie op zoek is naar een renovatieproject/investeringsproject aan scherpe prijs. Extra voordeel – bij aankoop van deze woning kan de koper naast verlaagd tarief 3% voor enige eigen woning genieten van bijkomende vermindering voor bescheiden woning. Zo betaalt u slechts 1.700 euro registratierechten bij aankoop van deze woning (mits voorwaarden o.a. enige eigen woning – zie vlaanderen.be). Bijkomend kunt u aanspraak maken op renovatiepremies: www.mijnverbouwpremie.be. Het pand heeft een oppervlakte van 131m2 en bestaat uit een gelijkvloerse woonkamer, eetkamer, keuken en veranda, evenals drie slaapkamers en een badkamer op de eerste verdieping. Achteraan verzorgde, lichtrijke tuin en terras. Perceel grond is 3a 82 ca. Technische informatie: - asbestvrije woning (enkel asbesthoudende golfplaten buiten op het dak van het tuinhuis). - gasleiding/gasmeter beschikbaar. Na renovatie is dit huis ideaal voor verhuur of voor eigen bewoning. Mis deze kans niet en neem vandaag nog contact op om een bezichtiging te plannen! Deze eigendom is onderhevig aan de renovatieverplichting die door de Vlaamse overheid wordt opgelegd vanaf 1/1/2023. Kopers van een woning met een EPC-label E of F zijn dan verplicht om binnen de 5 jaar de woning energetisch te renoveren tot minimum EPC-label D. Hiervoor zijn premies voorzien, zie www.mijnverbouwpremie.be. Voor meer informatie zie de website van de Vlaamse overheid: https://www.vlaanderen.be/een-woning-kopen/renovatieverplichting-voor-residentiele-gebouwen-vanaf-2023
Deel dit pand

Specificaties

Eigenschappen
Type huis
EPC label
EPC
EPC waarde 590 kWh/m2/j
Slaapkamers 3
Wettelijk verplichte vermeldingen
P-score
G-score
Omgevingsvergunning voor stedenbouwkundige handelingen
Stedenbouwkundige bestemming
Voorkooprecht
Verkavelingsvergunning
Handhaving (rechterlijke herstelmaatregel of bestuurlijke maatregel)
Shirshova
Anastasia Shirshova

Vastgoedmakelaar
BIV: 512.570

Telefoon:016798555

Plan je bezoek

Gelieve dit veld correct in te vullen.
Gelieve dit veld correct in te vullen.
Gelieve dit veld correct in te vullen.

We bewaren de info die je doorstuurt tijdelijk en met respect voor je privacy.