Woning met handelspand dichtbij Aarschot
Verkocht
Omschrijving
Dit goed gelegen handelspand aan de Gijmelsesteenweg 289 biedt uitstekende zichtbaarheid, dichtbij zowel het centrum van Aarschot als het dorpscentrum van Gijmel, omringd door diverse winkels en horecazaken. Het bestaat uit 4 kantoor/winkel ruimtes, magazijn en garage op gelijkvloers en appartement met 3 slaapkamers op het eerste en zolderverdiep.
Dit pand is perfect voor wie wonen en werken wil combineren op één locatie. Het is ideaal voor gebruik als kantoorruimte met atelier/werkplaats of winkel met magazijn. Met zijn ruime indeling, gunstige ligging biedt dit pand talloze mogelijkheden voor zowel uw bedrijf als comfortabel wonen.
Technische gegevens: EPC label D = goed (geen renovatieplicht!). Renovatie: Het gebouw werd in 2001 volledig gerenoveerd, inclusief een nieuw dak met natuurleien en isolatie, sierpleister op de buitengevels en nieuwe ramen/deuren met dubbele beglazing. Verwarming is op stookolie. Magazijn is ook verwarmd (aparte unit). Er zijn 4 airco-units geïnstalleerd – 2 in het appartement en 2 in de kantoren, wat zorgt voor een comfortabel klimaat in zowel woon- als werkruimtes. Elektrische Installatie=conform.
Indeling:
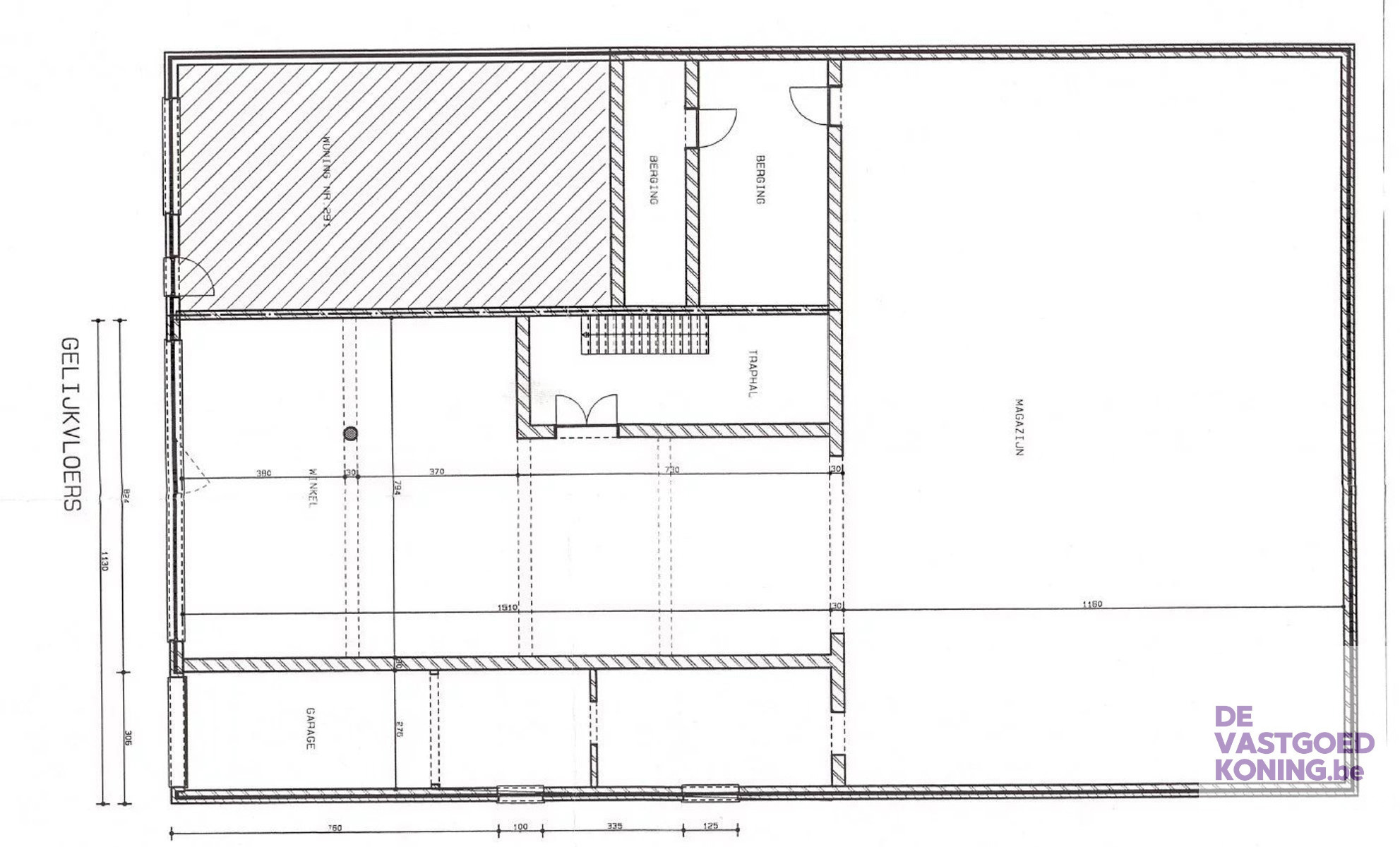
Gelijkvloers: Het gelijkvloers beschikt over 4 ruime kantoren, wachtzaal, toilet, berging en een garage – alles samen +/- 185m². Achteraan, bereikbaar via de garage, bevindt zich een groot magazijn of zaal van eveneens +/-185m², ideaal voor opslag of als grote winkelruimte. Parkeergelegenheid: Aan de voorzijde van het pand is er een ruime parkeerplaats voor 3-4 auto's, wat zorgt voor gemakkelijke toegang voor zowel bewoners als klanten.
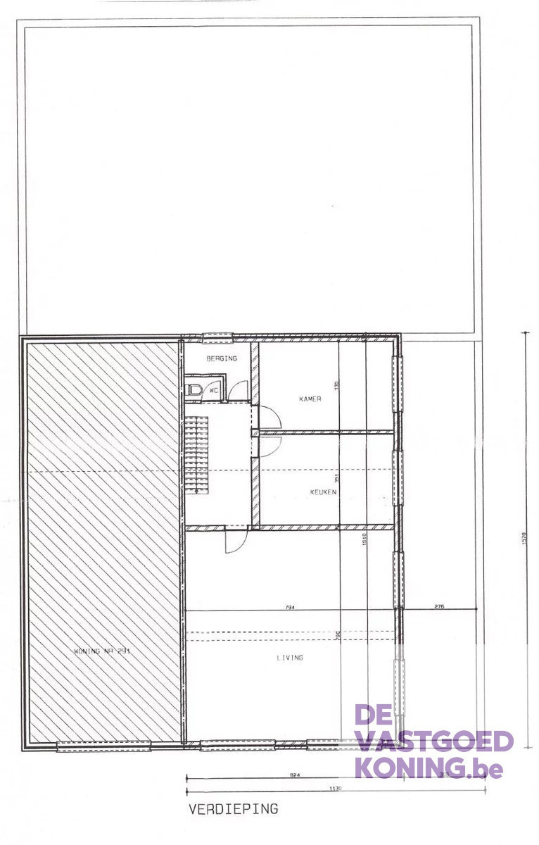
Duplex appartement: op de eerste verdieping bevindt zich een duplexappartement van ongeveer 184m², inclusief een groot terras van ongeveer 43m². Het appartement is voorzien van 3 slaapkamers, een badkamer met ligbad en douche, een apart toilet, een woonkamer en een volledig uitgeruste keuken met vitrokeramische kookplaat, oven en vaatwasser. Daarnaast is er een berging die eventueel kan worden omgebouwd tot een tweede doucheruimte. Het appartement is mooi afgewerkt met massief parketvloeren.
Mis deze unieke kans niet om een veelzijdig pand te bezitten op een toplocatie! Interesse? Bel deVastgoedkoning.be voor extra informatie of een bezichtiging tel 016/798.555 (ma-vrij 9-18u of za 9-12u) of email info@devastgoedkoning.be
Belangrijkste kenmerken in één oogopslag
Eigenschappen | |
|---|---|
| Type | commercieel |
| Grondoppervlakte | 472m² |
| Woonoppervlakte (bruto) | 554m² |
| Type buurt | handelsligging |
| Bouwjaar | 1946 |
| Kadastraal inkomen | € 1514 |
| EPC label | |
| EPC waarde | 347 kWh/m2/j |
| Garage | 1 |
| Parkeerplaats binnen | 1 |
| Verwarmingsbron | individueel |
| Type verwarming | stookolie cv |
| Airco/ en of warmtepomp | ja |
| Dubbele beglazing | ja |
| Riolering | ja |
| Gasleiding | ja |




